Cut to length lines for steel
Solutions inspired by your ideas and our experience
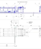
Equipment
Decoiler
1 pc;
Loading trolley
1 pc;
Film applicator
1 pc;
Straightening device
1 pc;
Guillotine scissors
1 pc;
Guillotine scissors
1 pc;
Hydraulic station
1 pc;
Pick-up stacker table
1 pc;
Control cabinet
1 pc.
Options
- Replaceable blocks of the straightening device;
- Paper application/rewinder
- Fences, sensors, cameras of critical areas, monitors;
- Tracking module (Operation, maintenance, simple, remote access, statistics. Tracking by the management of the line.);
- Logistics and packaging
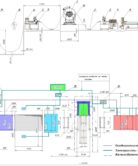
Description
The line is designed for straightening and cutting and further storage into a bundle of coiled steel with a thickness of 0.3-6.0 mm. on sheets of the required length
Specifications
Processed material
Galvanized sheet steel with protective and decorative paint coating, aluminum, stainless steel
Thickness of the processed material
0,3-6,0 mm.
Productivity
100 running meters/min
Accuracy of cutting on sheet
± 2 mm.
Straightening device
Used to straighten metal before cutting, and to remove residual stress from the metal.
Type of straightening device
Electromechanical
Number of leveling shafts of the straightening unit
According to the technical specifications
Feed rollers
Installed on the
Guillotine type
Electromechanical
Cutting device blade material
Alloy steel, hardness 55…62 HRC
Work mode
Semi-automatic
Control cabinet
Provides automatic line operation after loading the material into the line
Operating personnel
2 persons











