Beacons of the corner
Solutions inspired by your ideas and our experience
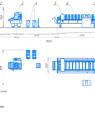
Equipment
Decoiler
1 pc;
Press stamp or rotary stamp
1 pc;
Roll forming mill
1 pc;
Cutting device
1 pc;
Receiving table
2 pcs;
Control cabinet
1 pc;
Options
- Replaceable perforation complexes;
- Stamps – duplicators;
- Fences, sensors, cameras of critical areas, monitors;
- Tracking module (Operation, maintenance, simple, remote access, statistics. Tracking of line work by the management);
- Logistics and packaging
Description of the line
The line is designed for the manufacture of plaster beacons and filler corners of various types from galvanized steel 0.4-0.6 mm, as well as from aluminum with a thickness of 0.3-0.5 mm.
Specifications
Processed material
Galvanized sheet steel (DC01, DC04, used in cold profiling), aluminium
Thickness of the processed material
0.4-0.6 mm (Plaster beacon), 0.3-0.5 mm (corner beads)
Workpiece width
According to drawings
Profiling speed
80 run. m./ min.
Accuracy of cutting
± 5 mm
Roll Forming Mill Type
Console / rack-mount
Press die type
Electromechanical
Work mode
Semi-automatic
Control cabinet
Provides automatic operation of the line after filling the material into the roll forming mill, equipped with a frequency converter
Operating personnel
2 persons











