Solar systems
Solutions inspired by your ideas and our experience
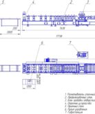
Equipment
Decoiler
1 pc.
Roll forming mill
1 pc.
Cutting device
1 pc.
Receiving table
2 pcs.
Control cabinet
1 pc.
Options
- Profile perforation device;
- Fences, sensors, cameras of critical areas, monitors;
- Tracking module (Work, maintenance, simple, remote access, statistics. Tracking by the management of the line.);
- Logistics and packaging.
Description of the line
The lines are designed for the production of profiles from which a frame is assembled on which solar panels are mounted from sheet steel with a thickness of 1.0 to 4.0 mm.
Specifications
Processed material
thin-sheet rolled products with a protective and decorative paint coating applied on galvanized steel (steel grades DC01, DC04 with a yield strength of at least 230 MPa, a tensile strength of up to 490 MPa, a relative elongation of at least 22%) or grade DX51D + Z (with a yield strength not less than 230 MPa, tensile strength up to 490 MPa, relative elongation not less than 22%)
Thickness of the processed material
0,3-0,5 mm
Workpiece width
According to drawings
Profiling speed
25 run. m. / min
Cut-off accuracy
± 2mm
Roll Forming mill type
Rack
Control cabinet
Provides automatic operation of the line after filling the material into the roll forming machine, equipped with a frequency converter and CNC
Operation staff
1-2 persons











