Grape poles

Solutions inspired by your ideas and our experience
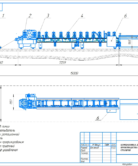
Equipment
Decoiler 1 pc.
Press stamp 1 pc.
Roll forming mill 1 pc.
Cutting device 1 pc.
Receiving table 2 pcs;
Control cabinet 1 pc.
Stamping equipment 1 pc.
Options

  • Replaceable stamp equipment;
  • Double stamps;
  • Fences, sensors, cameras of critical areas, monitors;
  • Tracking module (Work, maintenance, simple, remote access, statistics. Tracking the work of the line by management);
  • Logistics and packaging.
Description of the line

The lines produce different types of grape poles. The profiles are made of thin-sheet galvanized steel with a thickness of 0.8 to 2.0 mm.

Specifications
Processed material Thin-sheet galvanized steel (steel grade DC01, DC04, application: cold rolling)
Thickness of the processed material 0,8-2,0 mm.
Workpiece width 60-210 mm
Profiling speed 20 run. m./ min
Accuracy of cut-off ± 5 mm
Work mode Semi-automatic
The maximum length of the profile accepted by the pickup table 4000 mm
Perforation Profile perforation is carried out on the mill in automatic mode
Control cabinet Provides automatic operation of the line after filling the material into the roll forming machine, equipped with a frequency converter
Operation staff 1-2 persons
You may also be interested
Contact us
Fill the form below and and we will contact you shortly
Our Partners